- Vinyl siding
- 30 year architectural shingles
- Raised panel shutters on front side only
- 100% drywall
- White interior paint/primer (base coat)
- 8’ ceiling height
- Stipple ceilings
- Duracraft® cabinets
- Soft-close cabinet doors
- 42” overhead cabinets
- Cabinet pulls
- Samsung® stainless steel range, 18 cu. ft. refrigerator, dishwasher
- 2” faux blinds
- Recessed LED can lights throughout
- Carpet all bedrooms
- Stainless steel double bowl kitchen sink
- Square porcelain bath lavs
- Pfister® brushed nickel faucets
- Rheem® 40-gallon water heater
- Carrier® Smart Comfort® furnace
- Honeywell Home smart thermostat
- GFI by each standard door
- Hose bibs front/back
- Euro range hood (may not fit in some models)
- 200 amp service
- 3/12 roof pitch
- Perimeter ducts standard
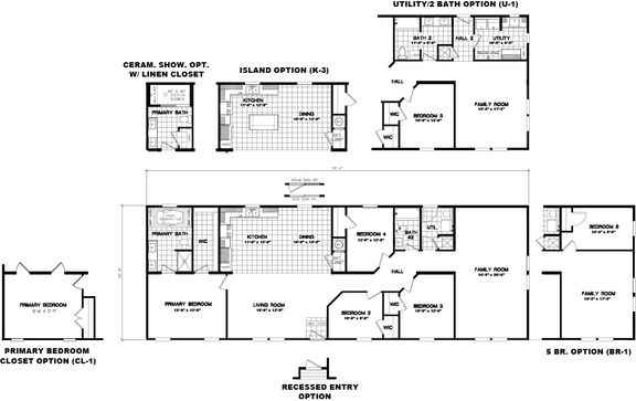
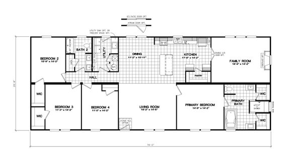
*Please reference modular resources for construction differences on MOD homes.
When you look at a Clayton Built® home, you will see it is complete with appliances and materials from other dependable brands built right in. We partner with some of the world’s leading homebuilding brands to ensure your home is equipped with safe, sustainable, long-lasting and innovative products.
Honeywell Home thermostats make comfort easy to manage with reliable, easy-to-use technology backed by over 130 years of trusted innovation.
Samsung® combines style, excellence and efficiency to build appliances homeowners can be proud to own—and trust to last.
Pfister® faucets are built using metal parts, providing great durability over the life of the faucet. Every drain includes Pfister’s Pforever Warranty® that covers finish and function.
Kwikset® SmartKey Security™, with one-key convenience, allows you to re-key your lock yourself in seconds and provides security that protects against advanced break-ins.
Shaw® Floors’ R2X industry-leading applied chemistry for carpet defense provides consumers the long-term benefit of cleaning spills, soil and pet accidents quickly and easily.
SmartComfort® by Carrier is a fully insulated, sealed furnace unit that ensures you feel the comfort but don’t hear it.
DuraCraft® cabinetry surfaces are made from a sturdy, water-repellent material developed in Europe that is exclusive to Clayton Built® homes in the off-site housing industry.
More than just a beautiful design feature, Lux windows help homes be more energy efficient with low-E glass and optional argon gas-filled windows.
Rheem®’s 40-gallon, dual-element hot water heater comes standard, meaning more hot water for longer. Automatic thermostats keep water heated to your desired temperature.































